×
Home Builders in Knoxville TN | Saddlebrook Properties

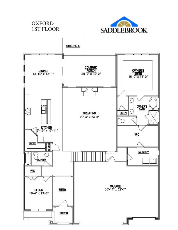
Floor Plan

Bedrooms
4 to 5
Bedrooms
Bathrooms
3 to 4
Bathrooms
Car Garage
3
Car Garage

Home Details

This spacious floor plan comes complete with a main-level master suite and a standard three-car garage. The spacious great room is an ideal space for entertaining, and it seamlessly connects to the beautiful kitchen with its expansive island and dining area. If you're looking to extend your entertaining space, simply open the doors that lead to a large covered porch where you can relax and enjoy nature. The main-level master suite features a spa-like bath with a double bowl vanity, a walk-in shower, a relaxing garden tub, and a private water closet. Additionally, the walk-in closet is a dream come true for anyone who loves their wardrobe! The main level private guest suite offers the flexibility to use what best fits your needs.  Heading upstairs, you'll discover two additional bedrooms, each equipped with its own walk-in closet. There is also a full bath, walk-in storage space, and an expansive loft that's perfect for a playroom or game room. If needed, you can even allocate some of this space to create an optional bedroom or office, offering flexibility to suit your needs.

Key Features

1st Floor

  • Dramatic 2-Story Entrance
  • Owner's Suite w/ Spa-Inspired Ensuite
  • Grand 10' Ceilings w/ 8' Doorways
  • Main-level Guest Suite
  • Chef-Inspired Kitchen
  • 3 Car Garage
  • Private Covered Porch Retreat

2nd Floor

  • 2 Bedrooms
  • 1 Full Bathroom
  • Expansive Loft Area
  • Generous Attic Storage

Square Footage

Total Living Area

3,237+

1st Floor

2,098+

2nd Floor

1,139

Communities Featuring The Oxford

The Foundry at Hardin Valley

Hear from Saddlebrook Homeowners

Looking for new home inspiration?

Enter your email to download our brochure and discover more about Saddlebrook's beautiful homes.

    Call Us Schedule Appointment