Lot 90 – 1014 Branch Hook Rd
$779,900
Under Construction
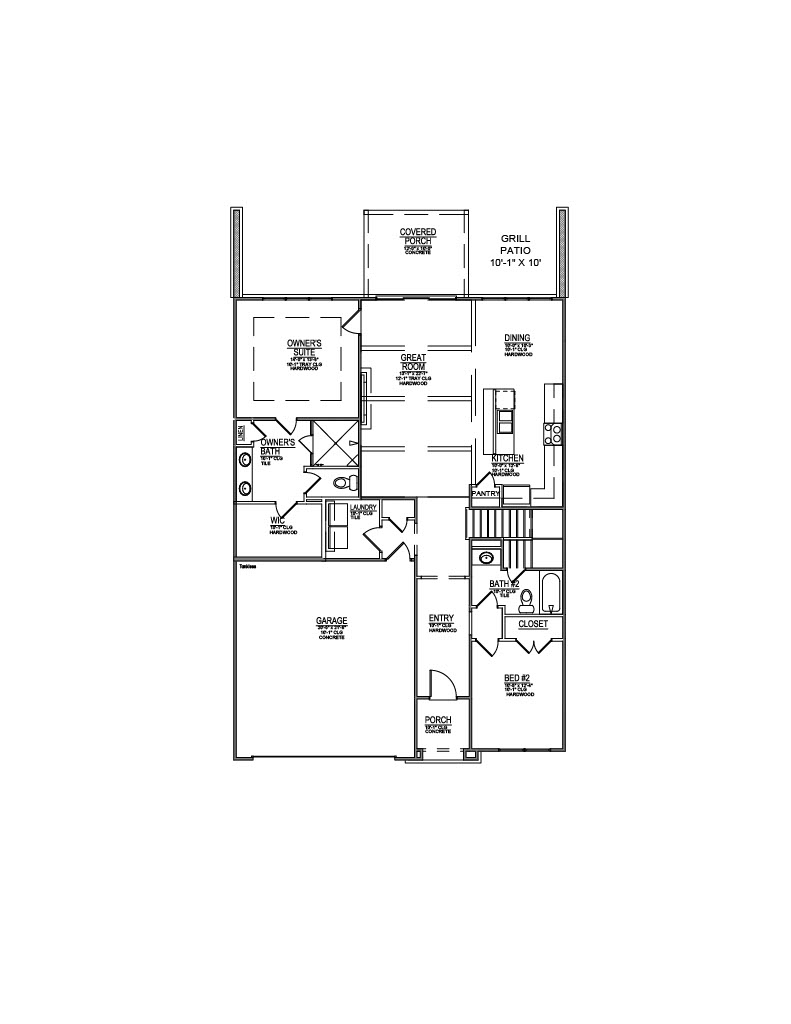
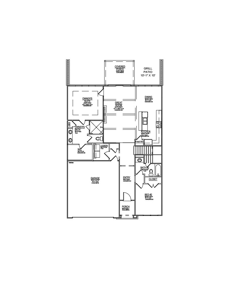
Floor Plan
The Grant Townhome is a dream come true for those seeking convenience and downsizing without sacrificing style. This designer townhome embraces open-concept living, featuring three standard bedrooms and bathrooms. The master bedroom, complete with a spa-like master bath, and an additional bedroom are both conveniently located on the main level, along with an extra full bath. This floor plan offers options to further customize your townhome to your liking with additions including a covered or screened porch, a deluxe bathroom, a linear fireplace, and a fourth bedroom. This allows you to tailor your home to your preferences while enjoying all the benefits of a beautiful home with reduced maintenance.
Photo Gallery
All media are of previously built models. Some variations in finish level, options, dimensions, and structural changes should be assumed and can change without notice.
Photo Gallery
Location
Situated next to The Grove at Boyd Station, this community offers designer townhomes and many community amenities including a pool and clubhouse.
About The Grove Towns
Designed as part of The Grove at Boyd Station, The Grove Towns is a luxury Farragut townhome community. Featuring two designer floor plans with 10-foot ceilings on the main level, private covered porches, and architectural elevations crafted by a nationally acclaimed architect, The Grove Towns is a wonderful community for downsizers and small families who seek a luxury lifestyle in a prime Farragut location. The Grove Towns provides many desirable amenities including a beautifully landscaped pool area and amenity center, offering spaces for gathering and relaxation under the shade of trees.
Nearby Local Amenities
McFee Park
McFee Park is Farragut's largest park, featuring lighted fields, tennis/pickleball courts, a basketball court, a splashpad, and scenic walking trails. With picnic pavilions, restrooms, and an adaptive bike and hike trail, it's the perfect spot for recreation and relaxation.
Willow Creek Golf Club
Willow Creek Golf Club features a scenic 18-hole championship course. Enjoy top-tier amenities, including a pro shop, lessons, and tournaments. Single, family, and senior memberships are available.
Concord Park & Marina
Concord Park & Marina is located along the Tennessee River in Knoxville and offers trails, a swim area, and over 400 wet slips with water and electric hook-ups for both short-term and long-term storage. Enjoy boat rentals, a fully stocked ship’s store, and a convenient fuel dock.
Farragut Greenways
Enjoy convenient access to Farragut's extensive greenway system, which spans approximately 16 miles. The scenic trails connect neighborhoods and offer perfect spots for biking, walking, running, and rollerblading. Easily access the McFee Greenway and Virtue Rd./Little Turkey Creek Greenway from the community.