Lot 68 – 11713 Boston Ivy
$1,089,900
Complete
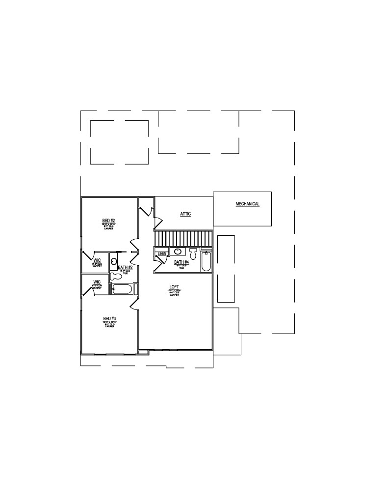
Floor Plan
This stunning open-concept floor plan comes complete with a standard three-car garage and a main-level master suite. The spacious great room is an ideal space for entertaining and it seamlessly connects to the beautiful kitchen with its expansive island and casual dining area. If you're looking to extend your entertaining space, simply open the inviting 9-foot sliding doors that lead to a covered porch where you can relax and enjoy nature. The main-level master suite offers a private oasis, featuring a spa-like bath with a double bowl vanity, a walk-in shower, a relaxing garden tub, and a private water closet. Additionally, the walk-in closet is a dream come true for anyone who loves their wardrobe! Heading upstairs, you'll discover two additional bedrooms, each equipped with its own walk-in closet. There is also a full bath, walk-in storage space, and an expansive loft that's perfect for a playroom or game room. If needed, you can even allocate some of this space to create an optional fourth bedroom or office, offering flexibility to suit your needs.
3D Virtual Tour powered by
Experience the future of home exploration with our Immersive Exploration: 3D Virtual Tour, offering an interactive way to envision your dream space by navigating through each room, though some variations in finishes and design details may occur as our models evolve.
Photo Gallery
All media are of previously built models. Some variations in finish level, options, dimensions, and structural changes should be assumed and can change without notice.
Location
Located in Hardin Valley, Vining Mill features many of our most popular floor plans and desirable family-friendly amenities including a community pool and playground.
About Vining Mill 
Vining Mill is a beautiful community located in West Knoxville’s Hardin Valley offering an array of designer floor plan options to accommodate the desired lifestyle of you and your family. What sets Vining Mill apart is its unrivaled panoramic view of the Cumberland Mountains and scenic pastures, creating a truly unique living experience. This community is thoughtfully designed with families in mind. With a playground, pavilion, spacious pool, and well-lit sidewalks, Vining Mill is designed to bring people together. As a resident of Vining Mill, you'll also have the convenience of nearby shopping and dining options in Hardin Valley and Farragut, as well as access to the award-winning Hardin Valley schools, making it an ideal place for families to call home.
Nearby Local Amenities
Melton Hill Park
Nestled along the Clinch River, Melton Hill Park offers a variety of outdoor activities, including fishing, boating, and hiking. Explore miles of paved greenways and natural surface trails through woods and meadows with scenic spots for picnicking by the river.

The Pickleball Playground
The Pickleball Playground features 10 indoor and 16 outdoor courts, plus tennis and a golf simulator. Enjoy open play, leagues, and clinics for all skill levels. Memberships offer exclusive access to events and courts.

Turkey Creek
Turkey Creek is Knoxville’s premier shopping, dining, and entertainment destination, offering a wide variety of stores, restaurants, and family-friendly activities like a movie at Regal Cinemas.

Fox Den Country Club
Fox Den Country Club offers a beautiful golf course, state-of-the-art fitness facilities, and a range of outdoor activities. Enjoy fine dining, exclusive events, and a friendly community atmosphere.
