Lot 49 – 1111 Branch Hook
$799,900
Under Construction
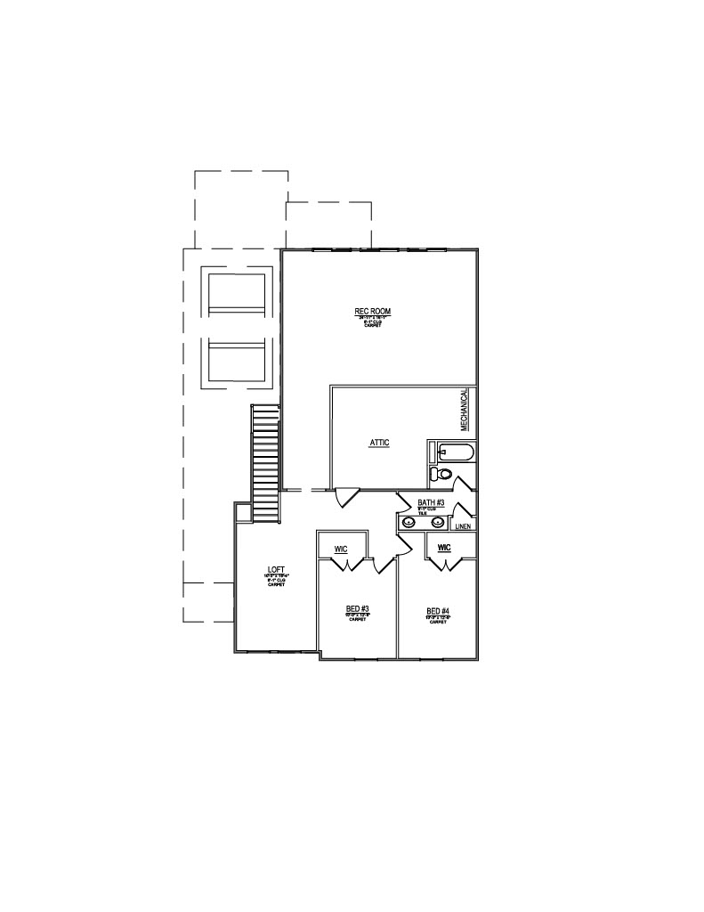
Floor Plan
The Grayson presents an ideal open-concept floor plan designed for entertaining. The living space brings in beautiful natural light and opens up to a designer kitchen. The master suite can be conveniently found on the main level along with an additional bedroom perfect for visiting guests. For added personalization, you have several options to customize your townhome, including adding a covered or screened porch, a deluxe bathroom, a linear fireplace, and a fourth bedroom. This allows you to create a home that suits your preferences while benefiting from the advantages of a new home with reduced maintenance.
3D Virtual Tour powered by
Experience the future of home exploration with our Immersive Exploration: 3D Virtual Tour, offering an interactive way to envision your dream space by navigating through each room, though some variations in finishes and design details may occur as our models evolve.
Photo Gallery
All media are of previously built models. Some variations in finish level, options, dimensions, and structural changes should be assumed and can change without notice.
Location
Situated next to The Grove at Boyd Station, this community offers designer townhomes and many community amenities including a pool and clubhouse.
About The Grove Towns 
Designed as part of The Grove at Boyd Station, The Grove Towns is a luxury Farragut townhome community. Featuring two designer floor plans with 10-foot ceilings on the main level, private covered porches, and architectural elevations crafted by a nationally acclaimed architect, The Grove Towns is a wonderful community for downsizers and small families who seek a luxury lifestyle in a prime Farragut location. The Grove Towns provides many desirable amenities including a beautifully landscaped pool area and amenity center, offering spaces for gathering and relaxation under the shade of trees.
Nearby Local Amenities
McFee Park
McFee Park is Farragut's largest park, featuring lighted fields, tennis/pickleball courts, a basketball court, a splashpad, and scenic walking trails. With picnic pavilions, restrooms, and an adaptive bike and hike trail, it's the perfect spot for recreation and relaxation.

Willow Creek Golf Club
Willow Creek Golf Club features a scenic 18-hole championship course. Enjoy top-tier amenities, including a pro shop, lessons, and tournaments. Single, family, and senior memberships are available.

Concord Park & Marina
Concord Park & Marina is located along the Tennessee River in Knoxville and offers trails, a swim area, and over 400 wet slips with water and electric hook-ups for both short-term and long-term storage. Enjoy boat rentals, a fully stocked ship’s store, and a convenient fuel dock.

Farragut Greenways
Enjoy convenient access to Farragut's extensive greenway system, which spans approximately 16 miles. The scenic trails connect neighborhoods and offer perfect spots for biking, walking, running, and rollerblading. Easily access the McFee Greenway and Virtue Rd./Little Turkey Creek Greenway from the community.
