Lot 13 – 11726 Boston Ivy
$759,900
Under Construction
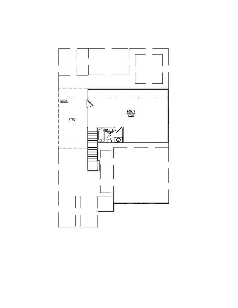
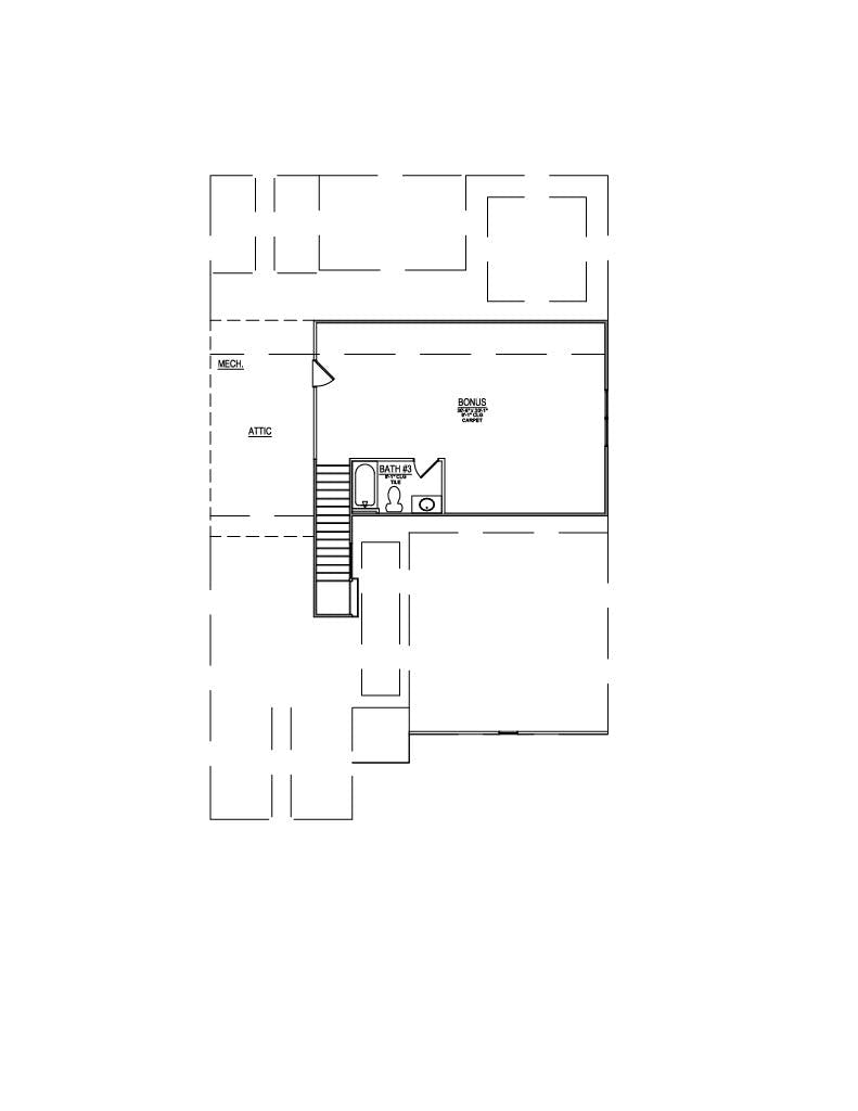
Floor Plan
The Jackson is a spacious ranch-style home with an added bonus room. Three main bedrooms, including the master suite, give you a variety of options, all on one level. The master suite features a beautiful bathroom with a tiled walk-in shower, a relaxing garden tub, and a spacious double vanity. The master bedroom also features a roomy walk-in closet, perfect for clothes lovers! Additionally, the Jackson features a casual dining room, great room, and designer kitchen, allowing for endless entertaining opportunities. A built-in covered porch also adds to your options, allowing for additional entertaining space, or for a relaxing evening at home with family.
3D Virtual Tour powered by
Experience the future of home exploration with our Immersive Exploration: 3D Virtual Tour, offering an interactive way to envision your dream space by navigating through each room, though some variations in finishes and design details may occur as our models evolve.
Photo Gallery
All media are of previously built models. Some variations in finish level, options, dimensions, and structural changes should be assumed and can change without notice.
Location
Located in Hardin Valley, Vining Mill features many of our most popular floor plans and desirable family-friendly amenities including a community pool and playground.
About Vining Mill 
Vining Mill is a beautiful community located in West Knoxville’s Hardin Valley offering an array of designer floor plan options to accommodate the desired lifestyle of you and your family. What sets Vining Mill apart is its unrivaled panoramic view of the Cumberland Mountains and scenic pastures, creating a truly unique living experience. This community is thoughtfully designed with families in mind. With a playground, pavilion, spacious pool, and well-lit sidewalks, Vining Mill is designed to bring people together. As a resident of Vining Mill, you'll also have the convenience of nearby shopping and dining options in Hardin Valley and Farragut, as well as access to the award-winning Hardin Valley schools, making it an ideal place for families to call home.
Nearby Local Amenities
Melton Hill Park
Nestled along the Clinch River, Melton Hill Park offers a variety of outdoor activities, including fishing, boating, and hiking. Explore miles of paved greenways and natural surface trails through woods and meadows with scenic spots for picnicking by the river.

The Pickleball Playground
The Pickleball Playground features 10 indoor and 16 outdoor courts, plus tennis and a golf simulator. Enjoy open play, leagues, and clinics for all skill levels. Memberships offer exclusive access to events and courts.

Turkey Creek
Turkey Creek is Knoxville’s premier shopping, dining, and entertainment destination, offering a wide variety of stores, restaurants, and family-friendly activities like a movie at Regal Cinemas.

Fox Den Country Club
Fox Den Country Club offers a beautiful golf course, state-of-the-art fitness facilities, and a range of outdoor activities. Enjoy fine dining, exclusive events, and a friendly community atmosphere.
