Lot 107 – 1226 Wagon Hitch
$1,179,900
Under Construction
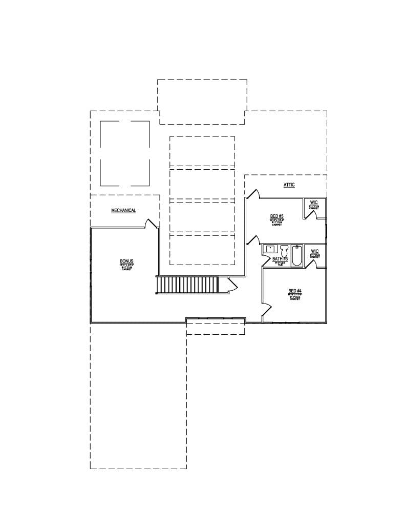
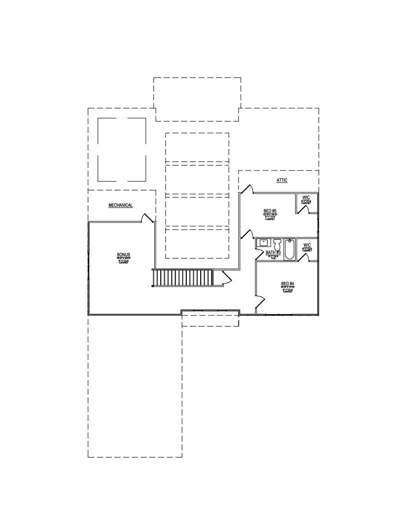
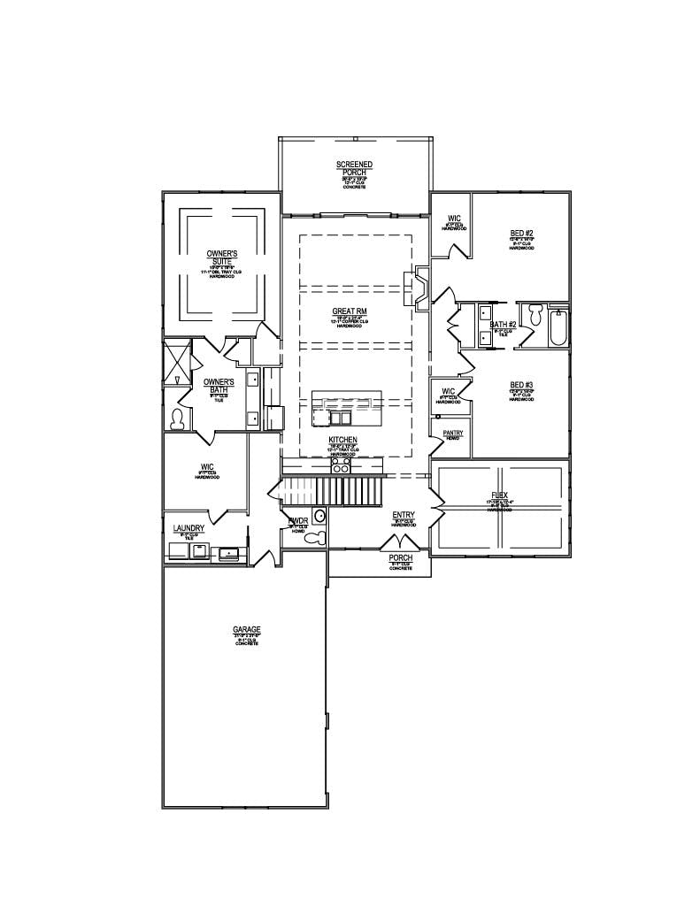
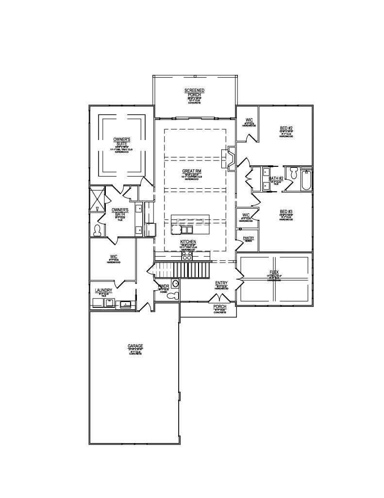
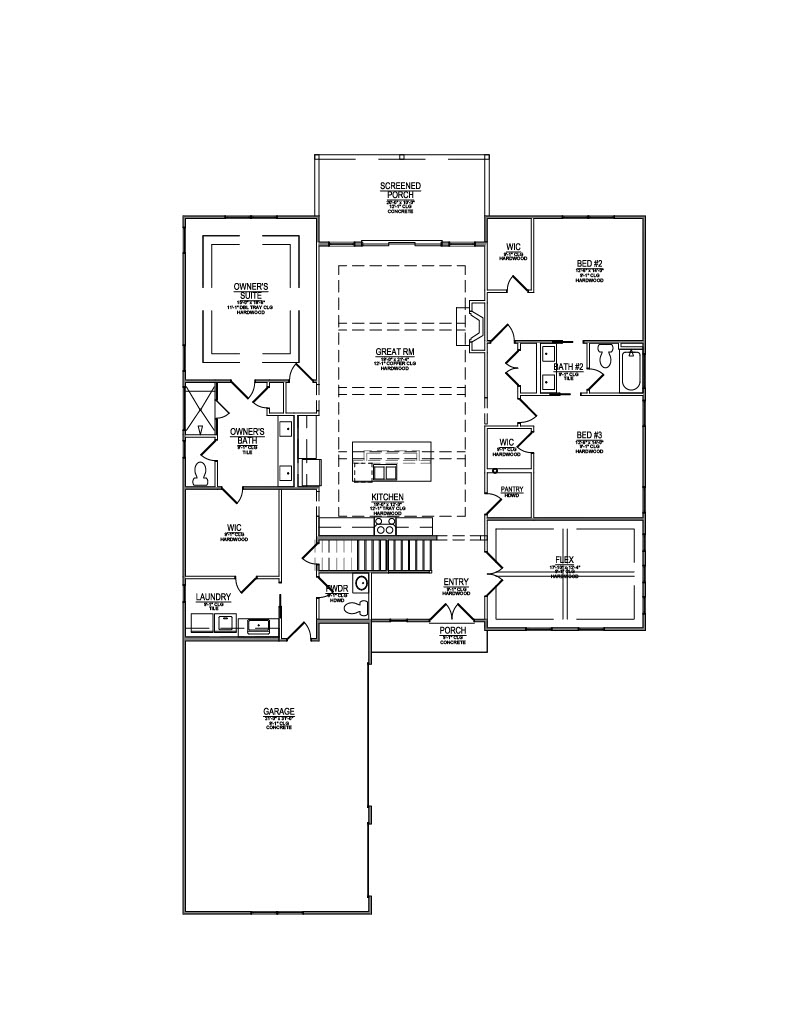
Floor Plan
The Harville offers spacious one-level living. Upon entering, you'll be greeted by an inviting entryway that seamlessly connects the kitchen, dining area, and great room, creating an exceptional open floor plan design, complemented by stunning 12-foot tall tray ceilings. This floor plan comes standard with a two-car courtyard entry garage, and there's the option to add a third bay for additional space. The master suite is expansive, featuring a generously sized bedroom and a luxurious bathroom with a deluxe shower, spacious double bowl vanities, and a private water closet. For added convenience, you can opt to include a large walk-in closet that connects directly to the laundry room. The master bedroom is tucked away by a private hallway, allowing for additional privacy. The second floor offers a loft space, a large walk-in attic, and the ability to add optional bedrooms and bathrooms if needed.
3D Virtual Tour powered by
Experience the future of home exploration with our Immersive Exploration: 3D Virtual Tour, offering an interactive way to envision your dream space by navigating through each room, though some variations in finishes and design details may occur as our models evolve.
Photo Gallery
All media are of previously built models. Some variations in finish level, options, dimensions, and structural changes should be assumed and can change without notice.
Location
Positioned to overlook Fort Loudon Lake with views of the Smoky Mountains in the distance, The Grove at Boyd Station offers our finest floor plans in a desirable Farragut location.
About The Grove at Boyd Station 
Perched on a hilltop, The Grove at Boyd Station is a luxury Farragut community offering gorgeous scenic views. As you arrive at The Grove, you will be greeted by the breathtaking blue hues of the Smoky Mountains, with distinctive silhouettes of iconic mountain peaks from some of East Tennessee's renowned hiking trails on the horizon. Below, you will find the tranquil waters of Fort Loudoun Lake on the Tennessee River.
This Farragut community features our latest and most versatile floor plans, catering to a wide range of preferences. Luxury homes, complete with expandable garages, grace the highest points of the landscape. Downhill is the beautifully landscaped pool area and amenity center, offering spaces for gathering and relaxation under the shade of trees. The Grove at Boyd Station has been meticulously designed for both families and friends to cherish for years to come.
Around the bend from the community pool and amenity center, you will discover luxurious townhomes in The Grove Towns.
Nearby Local Amenities
McFee Park
McFee Park is Farragut's largest park, featuring lighted fields, tennis/pickleball courts, a basketball court, a splashpad, and scenic walking trails. With picnic pavilions, restrooms, and an adaptive bike and hike trail, it's the perfect spot for recreation and relaxation.

Willow Creek Golf Club
Willow Creek Golf Club features a scenic 18-hole championship course. Enjoy top-tier amenities, including a pro shop, lessons, and tournaments. Single, family, and senior memberships are available.

Concord Park & Marina
Concord Park & Marina is located along the Tennessee River in Knoxville and offers trails, a swim area, and over 400 wet slips with water and electric hook-ups for both short-term and long-term storage. Enjoy boat rentals, a fully stocked ship’s store, and a convenient fuel dock.

Farragut Greenways
Enjoy convenient access to Farragut's extensive greenway system, which spans approximately 16 miles. The scenic trails connect neighborhoods and offer perfect spots for biking, walking, running, and rollerblading. Easily access the McFee Greenway and Virtue Rd./Little Turkey Creek Greenway from the community.
