Lot 02 – 12442 Pipers Run Ln
$1,299,900
Under Construction
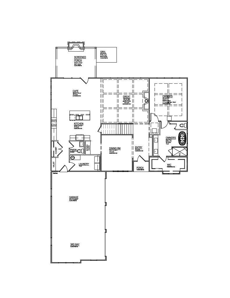
Floor Plan
This “Master on Main” floor plan is excellent for gatherings and entertaining. The spacious entryway flows seamlessly into the great room, and a handsome coffered ceiling greets you as you walk into the kitchen. The kitchen features a large island with overhang seating, perfect for large families or entertaining guests. The back hallway leads to a formal dining room with optional butler’s pantry. Also on the first floor is the master bedroom, a spacious room with double tray ceilings, a large corner shower and garden tub, double bowl vanities, and a private water closet. The master bedroom is also complimented by a vestibule area, allowing for privacy. The second floor features two spacious bedrooms, each with walk-in closets and access to a full bath. The bonus room, uniquely raised, makes for an excellent office or flex room. The loft in this floorplan can also be made into a fourth bedroom and optional bath.
3D Virtual Tour powered by
Experience the future of home exploration with our Immersive Exploration: 3D Virtual Tour, offering an interactive way to envision your dream space by navigating through each room, though some variations in finishes and design details may occur as our models evolve.
Media Gallery
All media are of previously built models. Some variations in finish level, options, dimensions, and structural changes should be assumed and can change without notice.
Photo Gallery
HD Video
About Holder Branch 
Holder Branch is an intimate community of only 17 homesites designed for luxury living within proximity to the beautiful Fort Loudoun Lake. As a resident of Holder Branch, you will enjoy thoughtfully designed homes with open layouts, top-end finishes, and the choice of a 3-car garage. The community offers seven semi-customizable floor plans, each with three elevation options, allowing you to buy or build a home that fits your lifestyle. Enjoy nearby access to marinas, golf courses, scenic parks, The Markets at Choto, and the Farragut Greenway. Additionally, families can benefit from proximity to top-rated schools, including Northshore Elementary, Farragut Middle, and Farragut High School. Choose Holder Branch for a limited opportunity to build your luxury home in one of West Knoxville’s most desirable locations!
Nearby Local Amenities
Concord Park & Marina
Concord Park & Marina is located along the Tennessee River in Knoxville and offers trails, a swim area, and over 400 wet slips with water and electric hook-ups for both short-term and long-term storage. Enjoy boat rentals, a fully stocked ship’s store, and a convenient fuel dock.

McFee Park
McFee Park is Farragut's largest park, featuring lighted fields, tennis/pickleball courts, a basketball court, a splashpad, and scenic walking trails. With picnic pavilions, restrooms, and an adaptive bike and hike trail, it's the perfect spot for recreation and relaxation.

Fox Den Country Club
Fox Den Country Club offers a beautiful golf course, state-of-the-art fitness facilities, and a range of outdoor activities. Enjoy fine dining, exclusive events, and a friendly community atmosphere.

Choto Marina
Choto Marina is located along Fort Loudoun Lake and offers covered slips, wet slips, and boat lifts for year-round storage. Enjoy a full-service fuel dock, on-site boat service and detailing, a ship’s store stocked with essentials, and the Cheers at Choto restaurant.
